Zentral in Ründeroth

Objekt-Nr. 66334-4260#btM58l – Einzelhandel zur Miete in Engelskirchen


Ansprechpartner

Jürgen Struß

Telefon: +49 2104 92700
Telefax: +49 2104 927020

info@projekt-immo.de

Kontakt aufnehmen

Eckdaten

Miete zzgl. NK 1.100 €
Nebenkosten 200 €
Miete inkl. NK 1.300 €
Adresse 51766 Engelskirchen
Nutzfläche ca. 110 m²

Beschreibung

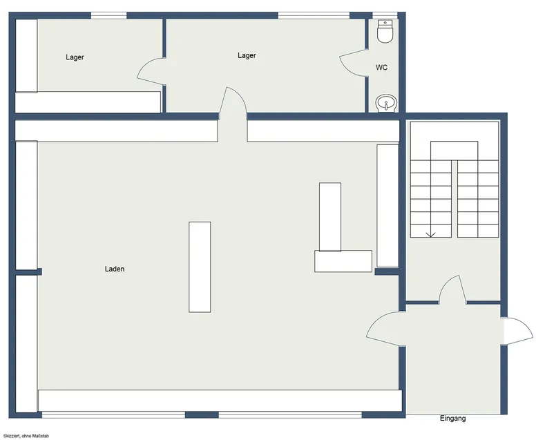
Die zur Miete stehenden Verkaufsflächen, mit einem großem Verkaufsraum, zwei Lagerräumen und WC verfügen über zwei Parkplätze und bietet damit ausreichend Platz für Kunden und Mitarbeiter. Das Gebäude ist solide gebaut und gut in Schuss, so dass es sich ideal für den Betrieb eines Ladengeschäfts oder Büros eignet.

Die Räumlichkeiten sind großzügig geschnitten und bieten viel Platz für individuelle Gestaltungsmöglichkeiten. Große Schaufenster sorgen für eine angenehme Atmosphäre und lassen viel Tageslicht herein. Der offene Grundriss ermöglicht eine flexible Nutzung der Fläche und bietet genügend Raum für Produktpräsentationen oder Arbeitsplätze.

Die zentrale Lage des Gebäudes ermöglicht eine gute Erreichbarkeit und eine hohe Kundenfrequenz, was sich positiv auf den Geschäftsbetrieb auswirken kann.

Insgesamt handelt es sich um eine attraktive Immobilie mit vielen Möglichkeiten zur individuellen Nutzung.

Ausstattungsbeschreibung

Die Immobilie verfügt über einen großen Verkaufsraum, zwei Lagerräume und ein WC.

2 PKW Stellplätze gehören zum Ladenlokal, weitere sind in der Fußläufigen Umgebung vorhanden.

Lagebeschreibung

Die Verkaufsfläche befindet sich in Zentrum von Ründeroth, einem charmanten Ortsteil von Engelskirchen im Bergischen Land. Ründeroth liegt südlich von Köln und gilt als beliebte Gegend mit einer malerischen Landschaft und einem historischen Ortskern. In unmittelbarer Umgebung der Immobilie finden weitere Parkplätze und öffentliche Verkehrsmittel, die eine gute Anbindung an die umliegenden Städte gewährleisten.

Die Region Bergisches Land ist bekannt für ihre natürliche Schönheit und ihre vielfältigen Freizeitmöglichkeiten. Mit zahlreichen Wander- und Radwegen, historischen Fachwerkhäusern und idyllischen Ortschaften bietet das Bergische Land Erholungssuchenden und Naturliebhabern eine ideale Umgebung. Durch die gute Verkehrsanbindung ist die Region zudem gut erreichbar und bietet sowohl Einheimischen als auch Touristen eine Vielzahl an Möglichkeiten zur Freizeitgestaltung.

Ausstattung

Gesamtfläche ca. 112 m²
Verkaufsfläche ca. 98 m²
Anzahl Etagen 1
Anzahl separate WCs 1
Anzahl Stellplätze 2
Anzahl Zimmer 3
Baujahr 1977
Befeuerungsart Gas
Denkmalschutz
Lage im Objekt (Etage) 1
Heizungsart Etagenheizung
Provisionspflichtig
Stellplätze 2
Stellplatzmiete 25 €
Stellplatzart Freiplatz
verfügbar ab Nach Vereinbarung

Energiebedarfsausweis

Endenergiebedarf-Strom 31,70 kWh/(m²*a)
Endenergiebedarf-Wärme 340,20 kWh/(m²*a)
Befeuerungsart Gas
Heizungsart Etagenheizung
Wesentlicher Energieträger Erdgas schwer
Baujahr (Energieausweis) 1977
Gültig bis 28.03.2035
Energieausweis 2014

0200400+


Objekt-Nr. 66334-4260#btM58l – Einzelhandel zur Miete in Engelskirchen

Zurück zu den Immobilienangeboten

Erfolg! Vielen Dank für Ihre Bewertung.

Fehler! Bitte füllen Sie alle Felder aus.