Wohnen wie im eigenen Haus mit Blick ins Grüne!

Objekt-Nr. 66275-8455 – Wohnung zum Kauf in Bergisch Gladbach


Ansprechpartner

Jürgen Struß

Telefon: +49 2104 92700
Telefax: +49 2104 927020

info@projekt-immo.de

Kontakt aufnehmen

Eckdaten

Kaufpreis Preis auf Anfrage
Adresse 51465 Bergisch Gladbach
Wohnfläche ca. 127 m²
Nutzfläche ca. 28,93 m²

Beschreibung

Wie gefällt Ihnen der Gedanke, eine Immobilie im Rahmen eines Bieterverfahrens zu erwerben?
So funktioniert es:
Das Bieterverfahren ist keine Versteigerung, auch wenn es auf den ersten Blick ähnlich wirken mag. Der entscheidende Unterschied: Bei einer Versteigerung erhält der Höchstbietende automatisch den Zuschlag. Beim Bieterverfahren hingegen wird nach Ablauf der Frist das höchste Gebot ermittelt. Der Verkäufer entscheidet anschließend, ob er dieses annimmt.
Ablauf:
Im Anschluss an die offene Besichtigung am 01.03.2026 haben alle Interessenten die Möglichkeit, ein schriftliches Gebot abzugeben. Die Gebotsfrist endet am 06.03.2026.

Diese Immobilie bietet eine tolle Raumaufteilung mit Wohnkomfort durch Blick ins Grüne. Schon beim Betreten des Wohnbereichs, welcher über einen großzügigen Flur erreichbar ist, wird man durch bodentiefe Fenster und die angrenzende Terrasse von diesem Blick überzeugt.

Der groß geschnittene, offene und helle Wohn- und Essbereich bietet Platz für die ganze Familie. Die angrenzende Küche der Marke Poggenpohl ist zusätzlich mit hochwertigen Elektrogeräten der Marke Neff ausgestattet.
Helle Fliesen runden das Gesamtbild im Erdgeschoss ab.

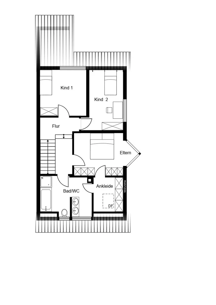
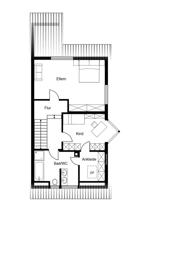
Im Dachgeschoss verbindet ein Flur alle weiteren Räume. Dazu zählt auch das große Badezimmer, welches sowohl eine Dusche als auch eine Badewanne bietet. Dieses Badezimmer, und auch das Gäste-WC im Erdgeschoss, sind mit Tageslichtfernstern ausgestattet. Die anderen Räume können beispielsweise als Kinder- und Schlafzimmer genutzt werden. Auf dieser Etage ist außerdem Teppichboden verlegt.
Im Untergeschoss befindet sich ein weiterer beheizter Raum mit Teppichboden, welcher problemlos als Büro genutzt werden kann. Im Heizungsraum nebenan befindet sich zudem die Sauna. Die Fenster im gesamten Haus und die Heizung stammen aus dem Baujahr des Hauses (1991). Außerdem ist eine Fußbodenheizung verlegt. Im Dachgeschoss bietet ein Dachspeicher zusätzlichen Stauraum, wobei die Decke für ideale Energieeffizienz gedämmt ist.

Das Inventar wird durch ein zusätzliches Entgelt in Höhe von 10.000,00 € als Aufschlag auf den Kaufpreis berechnet.
Dazu zählt:

- eine Infrarotlichtsauna
- Einbauschränke der Marke Interlübke
- Einbauküche mit Elektrogeräten u. a. von Marken wie Miele und Neff

Ausstattungsbeschreibung

- Terrasse


- elektrische Rollläden


- Wohngefühl wie in einem Haus


- bodentiefe Fenster im Wohn- / Essbereich


- Tageslichtfenster im Badezimmer


- Gäste-WC


- Sauna


- beheizte Teilunterkellerung


- überdachter Freiplatz

Lagebeschreibung

Das Objekt befindet sich in zentraler, zugleich ruhiger Wohnlage von Bergisch Gladbach. Die Umgebung ist geprägt von gepflegten Wohnhäusern, kleineren Mehrfamilienhäusern und begrünten Grundstücken, was ein angenehmes und familienfreundliches Wohnumfeld schafft.

Die Innenstadt von Bergisch Gladbach mit zahlreichen Einkaufs- und Versorgungsmöglichkeiten, Restaurants, Cafés, Ärzten und Apotheken ist in wenigen Minuten fußläufig erreichbar. Schulen, Kindergärten sowie verschiedene Freizeit- und Sporteinrichtungen befinden sich ebenfalls in der näheren Umgebung. Die Verkehrsanbindung ist sehr gut: Die S-Bahn-Station Bergisch Gladbach (S11 in Richtung Köln) liegt etwa zehn bis fünfzehn Gehminuten entfernt. Eine Bushaltestelle in der Nähe sorgt für eine bequeme Anbindung an den öffentlichen Nahverkehr. Mit dem Auto erreicht man über die Bundesstraße B506 und die Autobahn A4 (Anschlussstellen Moitzfeld oder Refrath) die Kölner Innenstadt in rund 20 bis 25 Minuten. Insgesamt bietet die Lage eine ideale Kombination aus Stadtnähe, guter Infrastruktur und ruhigem Wohnen in angenehmer Nachbarschaft.

Käuferprovision

3,57 % inkl. MwSt.

Ausstattung

Anzahl Badezimmer 1
Anzahl Etagen 2
Anzahl Schlafzimmer 2
Anzahl separate WCs 1
Anzahl Stellplätze 1
Anzahl Terrassen 1
Anzahl Zimmer 5
Kategorie Standard
Baujahr 1991
Befeuerungsart Gas
Gäste-WC
Heizungsart Fußbodenheizung
Sauna
Carportplätze 1
Unterkellert teilweise
verfügbar ab nach Vereinbarung
Verkaufstatus offen
Zustand gepflegt

Energiebedarfsausweis

Endenergiebedarf 158,66 kWh/(m²*a)
Befeuerungsart Gas
Heizungsart Fußbodenheizung
Wesentlicher Energieträger GAS
Baujahr (Energieausweis) 1991
Energieeffizienzklasse E
Gültig bis 16.10.2035

0200400+


Objekt-Nr. 66275-8455 – Wohnung zum Kauf in Bergisch Gladbach

Zurück zu den Immobilienangeboten

Erfolg! Vielen Dank für Ihre Bewertung.

Fehler! Bitte füllen Sie alle Felder aus.