Reihenendhaus mit vielfältigen Nutzungsmöglichkeiten in ruhiger Wohnlage in Geldern

Objekt-Nr. 20040-P2000 – Haus zum Kauf in Geldern


Ansprechpartner

Jürgen Struß

Telefon: +49 2104 92700
Telefax: +49 2104 927020

info@projekt-immo.de

Kontakt aufnehmen

Eckdaten

Kaufpreis 289.900 €
Adresse 47608 Geldern
Wohnfläche ca. 127 m²
Nutzfläche ca. 72 m²
Grundstücksfläche ca. 444 m²

Beschreibung

Dieses charmante Reihenendhaus überzeugt durch seine vielfältigen Nutzungsmöglichkeiten und eine ruhige Lage in einem angenehmen Wohnumfeld. Die ansprechende Fassadengestaltung, bestehend aus gelben und grauen Klinkern sowie eleganten Schieferplatten im oberen Bereich, verleiht dem Haus einen besonderen Charakter. Das Haus hat Kunststofffenster aus dem Jahr 1998, teilweise in ansprechender Holzoptik. Diese sind mit Rollläden ausgestattet und bieten hervorragenden Wärmeschutz sowie Privatsphäre. Eine effiziente Gasheizung sorgt für behagliche Wärme und Warmwasser. Zusätzliche Ausstattungsmerkmale wie eine Alarmanlage und eine Satellitenschüssel bieten Sicherheit und Komfort. Die hochwertige Einbauküche, ausgestattet mit AEG-Geräten, verbleibt im Haus. Das Objekt ist ab dem 1. Dezember 2025 bezugsfrei.
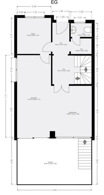
Im Erdgeschoss empfängt Sie ein einladender Eingangsbereich, der mit Fliesenboden, einem praktischen Einbauschrank, weiß lackierten Wandpaneelen und einer stilvollen dunklen Holzdecke gestaltet ist. Das helle Gäste-WC profitiert von natürlichem Tageslicht. Die moderne Küche, die sich in unmittelbarer Nähe zum Wohnbereich befindet, ist funktional und einladend. Das lichtdurchflutete Wohnzimmer, ausgestattet mit einer großen Glasfront zur Terrasse und grauem Vinylboden, verfügt über einen gemütlichen Kachelofen, der für eine angenehme Atmosphäre sorgt.

Im Obergeschoss setzt sich das harmonische Gestaltungskonzept mit Holzelementen fort. Alle Wohnräume sind mit Teppichböden ausgelegt. Das Badezimmer ist funktional gestaltet und bietet eine Badewanne, Dusche, WC, Waschbecken, ein Fenster und Spotbeleuchtung. Vom Elternschlafzimmer hat man Zugang zum Balkon. Es gibt drei weitere Schlafzimmer und ein Ankleidezimmer im Dachgeschoss.
Der gepflegte Außenbereich überzeugt durch seine Vielseitigkeit. Die großzügige Terrasse, um 2012 saniert, ist mit einer Markise ausgestattet und bietet Zugang zum Garten sowie zu einer gemauerten Gartenscheune mit Stromanschluss. Der weitläufige Garten umfasst gepflegte Wege, einen idyllischen Gartenteich, ein Gewächshaus und weitere Holzunterstände. Der Balkon im Obergeschoss bietet zusätzliche Freifläche für entspannte Stunden im Freien.

Sonstiges

Hier geht es zu unserem Immobilienvideo:
https://youtu.be/_hXBUNxHNpA

Ausstattungsbeschreibung

- Massivbauweise mit gelber und grauer Klinkerfassade, Schiefer im oberen Fassadenbereich.
- Kunststofffenster aus dem Jahr 1998, teilweise in Holzoptik.
- Manuelle Rollläden in allen Geschossen
- Gasheizung mit Warmwasseraufbereitung
- Alarmanlage mit Fernbedienung
- Erdgeschossboden 2020 erneuert
- Partykeller mit Theke
- Safe und Pumpensumpf vorhanden
- Gäste-WC mit Fenster
- Großes Wohnzimmer mit Schiebetür zur Terrasse und Kachelofen
- Badezimmer mit Wanne, Dusche und Fenster
- Balkonzugang über das Schlafzimmer im OG
- Große Terrasse mit Markise
- Garten mit Teich und Gewächshaus
- Gartenscheune mit Strom
- Holzunterstand
- Erneuerte Zaunanlage (2022)

Lagebeschreibung

Die Immobilie liegt in einer besonders begehrten Wohngegend von Geldern, die durch ihre hervorragende Infrastruktur und das angenehme Wohnumfeld besticht. Zahlreiche Einkaufsmöglichkeiten, darunter Supermärkte und Bäckereien, sowie diverse Dienstleistungsangebote sind in kurzer Zeit erreichbar und gewährleisten eine komfortable Versorgung des täglichen Bedarfs.

Für Familien bietet die Umgebung zahlreiche Vorteile: Kindergärten, Grundschulen und weiterführende Schulen befinden sich in der Nähe und sind gut erreichbar.
Bushaltestellen und der Gelderner Bahnhof bieten schnelle Verbindungen in die umliegenden Städte und Gemeinden. Darüber hinaus besteht eine gute Anbindung an überregionale Verkehrswege.

Die Freizeitmöglichkeiten sind vielfältig. Parks, Grünflächen und Naherholungsgebiete laden zu Spaziergängen und sportlichen Aktivitäten ein. Sportvereine, Fitnessstudios und weitere Freizeitangebote bieten zahlreiche Optionen zur aktiven Erholung. Kulturelle Einrichtungen, Veranstaltungen und eine abwechslungsreiche Gastronomie ergänzen das vielseitige Angebot.

Insgesamt bietet die Lage eine gelungene Kombination aus urbanem Komfort und einer ruhigen, naturnahen Wohnatmosphäre, ideal für alle, die Wert auf hohe Lebensqualität und gute Erreichbarkeit legen.

Ausstattung

Anzahl Badezimmer 1
Anzahl Balkone 1
Anzahl Schlafzimmer 3
Anzahl Terrassen 1
Anzahl Zimmer 5
Bad mit Dusche, Wanne
Baujahr 1977
Befeuerungsart Gas
Heizungsart Zentralheizung
Provisionspflichtig
Unterkellert
verfügbar ab 01.12.2025
Zustand gepflegt

Energiebedarfsausweis

Endenergiebedarf 210,90 kWh/(m²*a)
Befeuerungsart Gas
Heizungsart Zentralheizung
Wesentlicher Energieträger Gas
Baujahr (Energieausweis) 1977
Energieeffizienzklasse G
Gültig bis 12.10.2035
Energieausweis 2014
Energieausweis Ausstellungsdatum 13.10.2025

0200400+


Objekt-Nr. 20040-P2000 – Haus zum Kauf in Geldern

Zurück zu den Immobilienangeboten

Erfolg! Vielen Dank für Ihre Bewertung.

Fehler! Bitte füllen Sie alle Felder aus.